San Jose University Art Museum

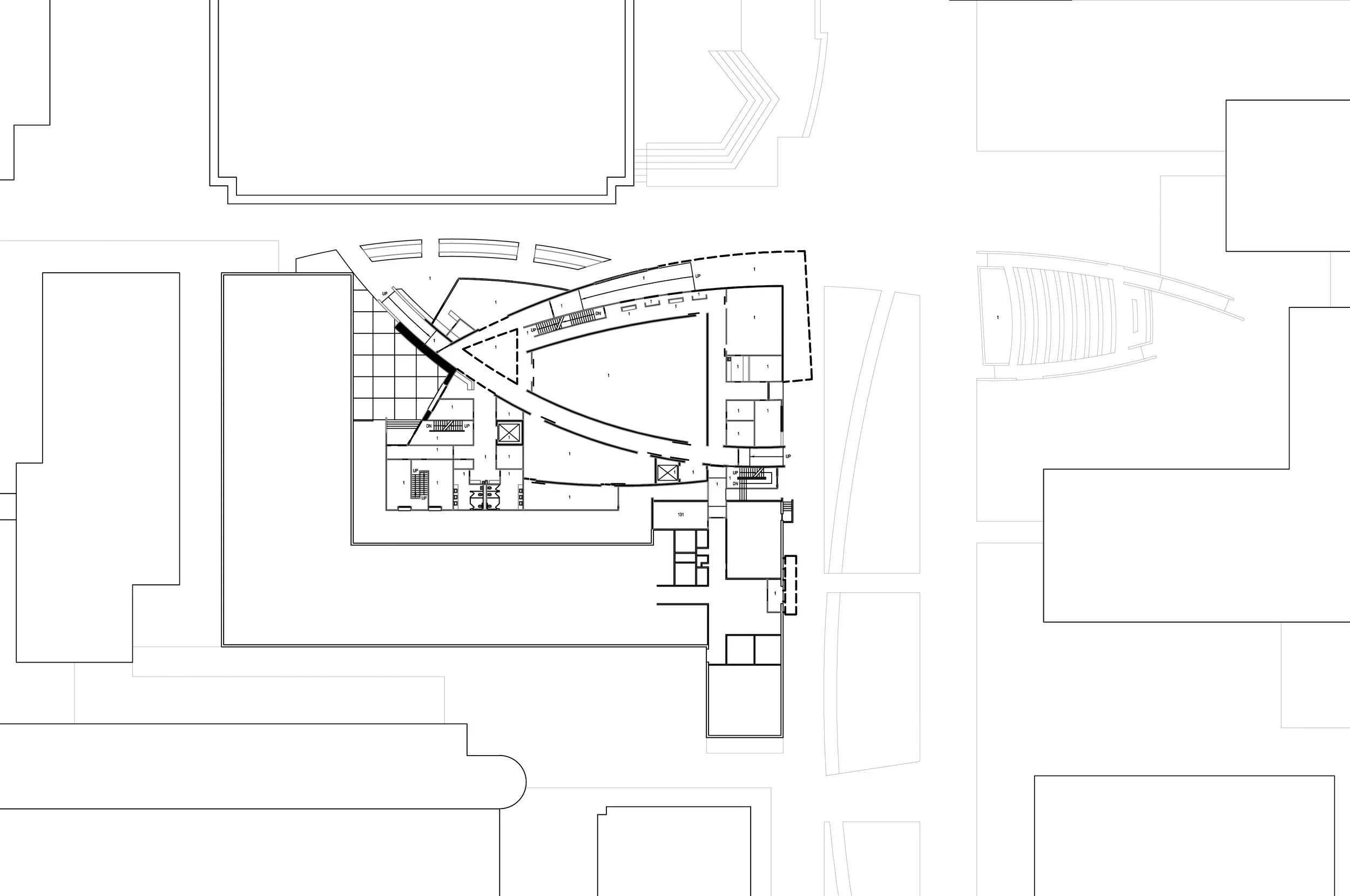
Competition to create an art gallery space on the campus of the university. The approach was to develop the gallery a passage or “shortcut” through the envelope. Cantilevered above the sidewalk, a performance is viewed from the lawn below.

Status: International Finalist

Previous
Previous

Thornton Park Residence

Next
Next

LTB Media