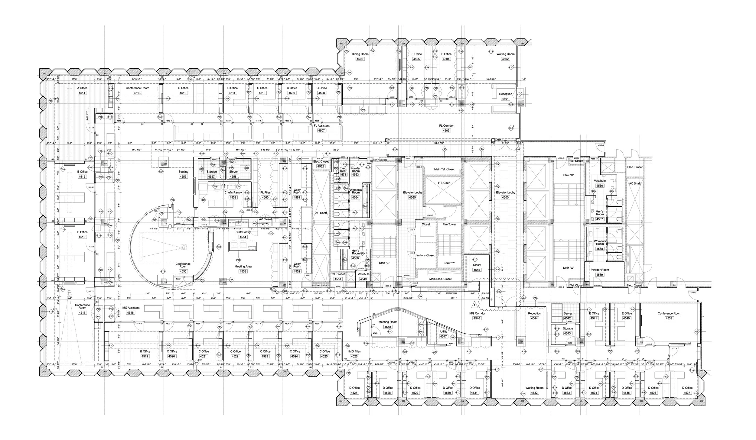
Designed by the office of Richard Meier, Dordevic Architecture + Construction was selected to construct the World Headquarters of IMG and Forstmann Little. Located in the prestigious General Motors building on 5th Avenue and 59th Street in Manhattan, the space included state of the art technology for audio, video, and sun shading.

Status: Completed 2008

Next
Next

Murray Hill Residence